底板塊 特殊改良桝・改良桝用
在庫豊富・大量注文対応可能
【 底板塊450】イメージ
【webAR】はスマートフォンでご覧ください
CD桝・改良桝、どちらにも使える底板塊
特殊改良桝【東京都CD型】用の底板塊です。
特殊改良桝とは、旧東京都住宅局(現在の都市整備局)が定めた東京都型排水桝(汚水・雨水)で、
CD桝や特殊改良桝とも言われ、東京都の公共施設・都営住宅のみならず民間マンション工事等でも全国的に幅広く使用されています。
【改良桝】用の底板塊としてもお使い頂けます。
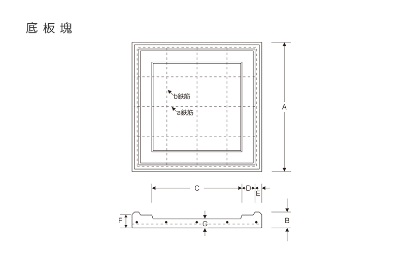
仕様寸法表(単位mm)
| 名 称 | A | B | C | D | E | F | G | a鉄筋 | b鉄筋 | 重量 |
|---|---|---|---|---|---|---|---|---|---|---|
| 300 | 465 | 80 | 290 | 57.5 | 30 | 70 | 50 | 径6mm 4本 | 径6mm 4本 | 34 kg |
| 360 | 525 | 80 | 350 | 57.5 | 30 | 70 | 50 | 径6mm 4本 | 径6mm 4本 | 42 kg |
| 450 | 635 | 80 | 440 | 67.5 | 30 | 70 | 50 | 径6mm 5本 | 径6mm 5本 | 59 kg |
| 500 | 685 | 80 | 490 | 67.5 | 30 | 70 | 50 | 径6mm 5本 | 径6mm 5本 | 68 kg |
| 600 | 785 | 80 | 590 | 67.5 | 30 | 70 | 50 | 径6mm 5本 | 径6mm 5本 | 85 kg |
※ 弊社の特殊改良桝(CD桝)製品にはすべて【ロゴマーク】又は【ミヤコマーク】が入っております。
製品図面ダウンロード
特殊改良桝【東京都CD型】 関連製品

お問い合わせ・資料請求
ご相談・お見積り等のご要望がありましたら、お気軽にご相談下さい。
担当者より折り返しご連絡差し上げます。













